Back to Greenwood Gardens

The Coach House

Discover the Coach House a stylish 1-bedroom home available through Shared Ownership.

Images are for illustration purposes only.

Key features

  • Energy efficient Your new home is designed to use less energy and cost less to run.
  • Open-plan design Contemporary layouts ensure a seamless flow between living areas.
  • Integrated appliances Our kitchens are fitted with sleek modern integrated appliances.
  • Plenty of storage Above-average storage solutions to maintain those clean lines.

Discover the Coach House, a beautifully designed one-bedroom home of 661 sq/ft, set within Greenwood Gardens part of Lower Herne Village. 

Occupying the upper floor of a detached building, this home offers a private entrance with stairs leading to a welcoming hallway. Inside, you’ll find contemporary and stylish open plan living, boasting integrated appliances to kitchen, seamlessly connected to the spacious dining and living area.

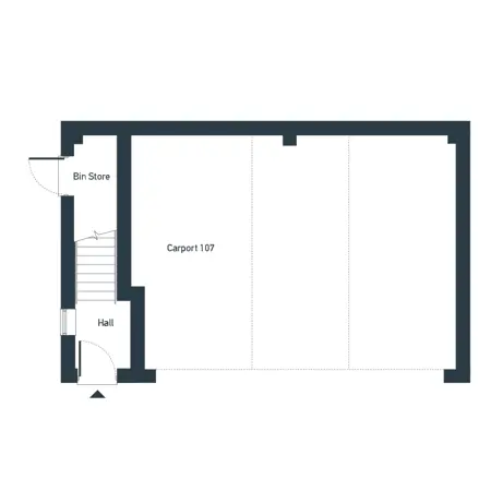
This home features a generous double bedroom, a modern main bathroom and ample storage throughout. In addition to an allocated parking space located within car port on lower floor. 

This contemporary and stylish home features a Symphony Hacienda kitchen finished with soft-close doors and laminate work surfaces with matching up stands. Boasting an integrated single oven, gas hob, fridge/freezer and washing machine. Uncover white ROCA sanitaryware within bathroom, and additionally, this home benefits from energy efficient central heating.

Our homes at Greenwood Gardens at Lower Herne Village are available to buy through the
government-backed Shared Ownership scheme. Buy a brand new home for less with deposits
starting from just 5% of the share you buy

How to contact us

Greenwood Gardens

Furrows Drive, Lower Herne, CT6 7FH

  • Monday: Closed
  • Tuesday: 10:00am-17:00pm
  • Wednesday: 10:00am-17:00pm
  • Thursday: 10:00am-17:00pm
  • Friday: 10:00am-17:00pm
  • Saturday: 10:00am-17:00pm
  • Sunday: Closed

Call us on

01227 387 087

Enquire now Download brochure

Available plots

KID (Key Information Document)

*Based on a % share of the full purchase price on the Shared Ownership / Shared Equity scheme

Floorplan

All layouts, floor plans and information are intended for guidance only.

Enquire now

Submit your interest by enquiring online or call us on 01227 387 087

Personal details
Your home buying preferences
How many bedrooms do you require? *





More about you
What is your current status? *





How would you like to purchase your new home? *




Do not include personal or financial information.
We'd love to keep in touch * By submitting this form, you agree to us contacting you. We’d also like to keep in touch by email and SMS with offers, information on other Developments which we think may interest you and to hear about your experience with us so far. We’ll keep your data safe, and you can withdraw your consent at any time.


For more information, please see our privacy policy

Try our Shared Ownership calculator

If you’re considering a Shared Ownership property, use the calculator below to estimate the deposit you may need and your monthly mortgage and rent costs.

Need more information? Enquire now.

Shared Ownership Calculator

£
%
£
%
%
yrs

Please note that the figures provided by the Shared Ownership calculator are approximate and are based on an estimated monthly rent of 2.75% of the share the property company own, but this figure can vary across developments.

Places for People is not authorised or regulated by the Financial Services Authority to provide financial advice so you should always seek expert advice from an Independent Financial Advisor in relation to mortgage products, interest rates and affordability before committing to a mortgage application or buying a property.

Your home may be repossessed if you do not keep up repayments on a mortgage.